Villa Elea
Rittsteinweg Nr. 5, Eppan an der Weinstraße (BZ)
Adresse
Rittsteinweg Nr. 5,
Eppan an der Weinstraße (BZ)
Anzahl
9 Wohneinheiten
Größen
65 m² – 147 m²
mit Privatgärten oder Terrassen
Fertigstellung
Dezember 2027
Heizung
Fußbodenheizung
Klimahaus
Kategorie A Nature
Alarm
Vorrichtung
Parken
Garagen
Vorrichtung
Villa Elea – Licht. Weite. Ruhe.
Namensgedanke
Der Name Villa Elea knüpft an die griechische Antike an: Elea (aus dem Altgriechischen Ēléa) bedeutet „strahlend, vom Licht getragen“.
Er spiegelt das freundliche, helle Ambiente des Hauses und seine harmonische Einbettung in die Landschaft.
Adresse & Lagebild
Am Rittsteinweg 5 in St. Michael | Eppan, im Ortsteil Gand, liegt die Villa Elea ruhig am Hang oberhalb des Dorfkerns.
Von hier öffnet sich der weite Blick über die Weinberge nach Girlan und in den Montiggler Wald.
Die Lage verbindet Privatsphäre mit der Nähe zu den Annehmlichkeiten des Ortszentrums.
Lagevorteile der Villa Elea
- Weitblick & Offenheit – klare Sichtachsen in die Kulturlandschaft; Atmosphäre von Weite und Ruhe.
- Gewachsenes Wohnumfeld – gepflegte Wohnstraße ohne Durchzugsverkehr; angenehmes, stabiles Mikroquartier.
- Nähe zu den Annehmlichkeiten des Ortszentrums – kurze Wege zu Nahversorgung und Dienstleistungen.
- Mobilität ohne Umwege – Bushaltestelle in kurzer Distanz; direkte Anbindung an Spazier- und Radwege.
- Alltagstauglich & familiengerecht – Schulen und Kindergarten gut erreichbar.
Klimahaussstandard A-Nature
Das Gebäude entspricht allen Kriterien der Klima Haus A-Nature Zertifizierung. Für die Fertigung werden ausgewählte, hochwertige Materialien verwendet. Aufgrund des niedrigen Energieverbrauchs dürfen sich die zukünftigen Eigentümer über die günstigen Betriebskosten freuen. Für angenehm stillen Wohnkomfort sorgt die auf Schallschutz ausgerichtete Bauweise, garantiert durch eine von der Klimahaus Agentur vorgeschriebenen Akustik-Zertifizierung.
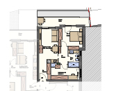
Wohnungsinfo
Nachfolgend finden Sie eine Liste der verfügbaren und verkauften Wohnungen.
| A1 | 98 m² | Erdgeschoss | 3-Zimmer Wohnung | |
| A2 | 79 m² | Erdgeschoss | 3-Zimmer Wohnung | |
| A3 | 66 m² | 1. Stock | 2-Zimmer Wohnung | |
| A6 | 65 m² | 2. Stock | 2-Zimmer Wohnung | |
| A8 | 95 m² | 2. Stock | 3-Zimmer Wohnung | |
| A9 | 147 m² | 3. Stock | 4-Zimmer Wohnung |








